如何清洗石英砂过滤器?

最近环保风暴愈演愈烈,污水处理等环保问题一直困扰着每个企业。过滤是污水处理的重要环节,其中过滤器在污水处理中起关键作用。那么有哪些过滤器呢?过滤器是如何运作的呢?
一、了解石英砂过滤器
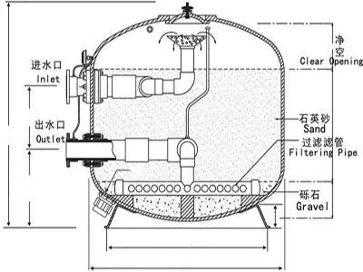
砂滤器,即石英砂过滤器,学名为浅层介质过滤器。它是利用石英砂作为过滤介质,在一定的压力条件下,浊度较高的水体自上而下通过一定厚度的粒状或非粒状石英砂,水体中部分废物被截留在砂体中,最终达到降低水体浊度、净化水质的目的。

石英砂过滤是去除水中悬浮物最有效手段之一,是污水深度处理、污水回用和给水处理中重要的单元,主要用于水处理除浊、软化水、超滤、纳滤、反渗透的预处理。
砂滤系统两类:
一类是常规石英砂过滤器,也被称作浅层介质过滤器。
另一类是新兴的过滤器,称为连续砂滤器,也被称为流砂过滤器。它巧妙地将过滤和洗砂过程在不同的部位同时单独进行,无需配置清水池和大功率反冲洗水泵,使过滤操作得以连续稳定的运行。以下主要介绍常规的石英砂过滤器。
二、砂滤原理
机械过滤器的吸附是一种物理吸附,按滤料的填装方式大体可分为松散区(粗砂)、紧密区(细砂),悬浮物质在松散区主工通过流动接触产生接触凝聚作用,所以该区域截留较大颗粒的悬浮物质,在紧密区主要是惯性碰撞及悬浮颗粒间的吸附作用,所以该区域是截留较小颗粒的悬浮物质。

如何清洗过滤器?
可用反冲洗的方法来进行清洗。利用逆向进水,同时通入压缩空气,进行气水混合擦洗,使过滤器内砂滤层松动,可使粘附于石英砂表面的截留物剥离并被反冲水流带走,有利于排除滤层中的沉渣、悬浮物等,并防止滤料板结,使其充分恢复截污能力,从而达到清洗的目的。
三、砂滤系统清洗流程











声明
1.本文内容由中国粉体网旗下粉享家团队打造,转载请注明出处!
2.请尊重、保护原创文章,谢绝任何其他账号直接复制原创文章!
3.欢迎加入中国粉体网微信交流群,请加微信:13661095071(备注公司名+加群)
4.因学识有限,难免有所疏漏和谬误,恳请批评指正!
5.欢迎圈内好友踊跃投稿,一经采用,将支付稿酬答谢!


